ST30130TEV Electric Skid Steer Loader
Tracked electric skid loader delivering up to 8 hours of operation on a single charge
- Battery Capacity
70.64kWh - Battery Type
Lithium iron phosphate (LFP) - Rated load
1300kg - Operating weight
4580kg
- Powered by a lithium iron phosphate battery system for zero-emission, eco-friendly performance. The 70.64 kWh battery supports up to 8 hours of continuous operation, meeting the demands of intensive workloads
- Equipped with dual permanent magnet synchronous motors that deliver strong, responsive power with a maximum traction force of 35kN for efficient climbing and heavy-duty work
- Features an EBI pilot control joystick, providing precise, smooth handling and reducing operator fatigue
- Hydraulic power output of 30kW with an auxiliary hydraulic flow of 85 L/min, compatible with a wide range of attachments
- Minimum turning radius of just 1600 mm, enabling flexible operation in narrow or confined workspaces
Specifications
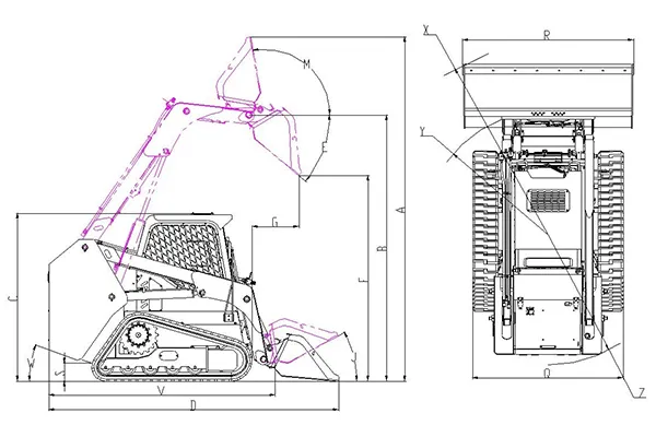
Basic Dimensions
| A | Working height (fully lifted) | 4390mm |
| B | Articulation height (fully lifted) | 3393mm |
| C | ROPS height | 2140mm |
| D | Total length (with bucket) | 3695mm |
| E | Downward tilt angle (fully lifted) | 40° |
| F | Dump height | 2625mm |
| G | Dump distance | 600mm |
| J | Upward tilt angle | 30° |
| M | Max. upward tilt angle | 100° |
| Q | Total width (without bucket) | 1920mm |
| S | Ground clearance | 230mm |
| R | Bucket width | 2180mm |
| W | Departure angle | 20° |
| V | Total length (without bucket) | 2885mm |
| Y | Turning radius (without bucket) | 1600mm |
| X | Turning radius (with bucket) | 2430mm |
| Z | Rear turning radius | 1660mm |

Technical Parameters
Battery System
| Battery Capacity | 70.64kWh |
| Battery Type | Lithium iron phosphate (LFP) |
Travel System
| Power | 2×35kW |
| Max. traction force | 35kN |
Hydraulic System
| Hydraulic flow for attachments | 85L/min |
| Pressure | 21MPa |
| Power | 30kW |
| Max. Speed | 2600rpm |
Technical Parameters
| Rated load | 1300kg |
| Tipping load | 2600kg |
| Operating weight | 4580kg |
| Travel speed (low/high) | 8/14km/h |
Main Configurations
| Control mode | Pilot hydraulic control |
| Engine | Lithium iron phosphate battery |
| Travel motor | Permanent magnet synchronous motor |
| Control joystick | EBI pilot control joystick |
| Working pump | Casappa gear oil pump |
| Hydraulic quick coupler | FASTER modular quick coupler |
| Chassis structure | Integrated frame |
Attachments
| Optional attachments | Applications | Notes |
| 4-in-1 Bucket, Breaker Hammer, Planer, Power Blower | Municipal and Road Maintenance | Planer and disc trencher require high-flow hydraulics |
| Manhole Cover Planer, Concrete Mixer Bucket, Lifting Hook | Manhole replacement | Manhole planer requires high-flow hydraulics |
| Angled Sweeper, Snow Plow, Snow Blower | Winter snow removal & ice control | Snow blower requires high-flow hydraulics |
| Tree Transplanter, Tree Shear, Mower, Auger, Wood Chipper | Landscaping, forestry, orchard maintenance | |
| Land Clearing Machine, Tree Shear, Wood Chipper | Forest clearing & fire prevention | Land clearing machine requires high-flow hydraulics |
Note:
With ongoing technological advancements, product specifications and configurations are subject to change without prior notice. In case of any uncertainty, the final confirmation provided by our international trade sales team shall prevail.
Optional attachment
Standard bucket
Deep bucket
Screening bucket
Quick coupler
Pallet forks
Auger
Snow plow blade
Log grapple
Round bale handler
Square bale handler
Flail mower
Lifting boom / Crane Attachment
Are your skid steer loaders suitable for environmentally sensitive job sites?
Are your skid steer loaders suitable for environmentally sensitive job sites?
Our electric skid steer loaders operate with zero emissions and are powered by lithium iron phosphate battery systems, making them clean, quiet, and energy-efficient. They are ideal for indoor environments and job sites with strict environmental regulations.
Which model is best for stable performance and operation across both indoor and outdoor applications?
Which model is best for stable performance and operation across both indoor and outdoor applications?
The wheel skid steer loader features a simple hydraulic cylinder structure and direct transmission without backlash, ensuring smooth operation and compact maneuverability. It’s suitable for narrow spaces such as sidewalks, residential areas, and plazas, as well as for construction sites and livestock farms.
Which loader allows quick attachment changes for different working scenarios?
Which loader allows quick attachment changes for different working scenarios?
The tracked skid steer loader is designed with a simple hydraulic system and smooth transmission. It supports a multi-functional attachment interface, allowing fast tool changes for diverse tasks. Operation is intuitive, efficient, and well-suited for multiple environments.
