JC25 Mini Skid Steer Loader
Wheeled skid steer with rated operating capacity of 380kg for road demolition and snow removal in tight spaces
- Operating weight
1460kg - Rated load
380kg - Bucket capacity
0.2m³ - Max. speed
9km/h
- Compact structure: Overall width of only 920 mm and a minimum turning radius of 960 mm allow for highly flexible and efficient operation in tight areas.
- Reliable power system: Equipped with a Kubota D1105 engine delivering 18.2 kW at 3000 rpm, offering stable performance with low fuel consumption.
- Strong loading capacity: With a rated load of 380 kg, bucket capacity of 0.2 m³, and a maximum breakout force ≥7.3 kN, it ensures excellent working efficiency.
- Quick attachment coupling system: Standard quick coupler supports multiple attachments such as hydraulic breakers, sweepers, grapples, and snow plows, enabling versatility across various applications.
- Excellent maneuverability: With a wheelbase of 801 mm and an approach angle of 13°, it provides strong terrain adaptability and smooth operation.
Specifications
| Model | JC25 |
| Operating weight | 1460kg |
| Rated load | 380kg |
| Bucket capacity | 0.2m³ |
| Max. speed | 9km/h |
| Max. traction | ≥12kN |
| Max. breakout | ≥7.3kN |
| Lifting time of boom | 7s |
Engine
| Manufacturer | Kubota |
| Model | D1105 |
| Rated power | 18.2kW/3000rpm |
| Engine displacement | 1.123L |
| Emission standard | Euro V/EPA4 |
Dimensions
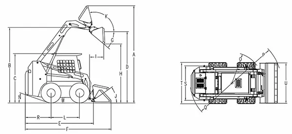
| A | Overall operating height | 3400mm |
| B | Height to bucket hinge pin | 2500mm |
| C | Height to top of cab | 1813mm |
| D | Height to bottom of level bucket | 2446mm |
| E | Overall length without bucket | 2200mm |
| F | Overall length with bucket | 2950mm |
| G | Dumping angle at maximum height | 40° |
| H | Dumping height | 2000mm |
| I | Dumping reach | 441mm |
| J | Rollback of bucket on ground | 30° |
| K | Rollback of bucket at full height | 103° |
| L | Wheelbase | 801mm |
| M | Ground clearance | 145mm |
| N | Angle of departure | 20° |
| O | Front turning radius without bucket | 960mm |
| P | Front turning radius | 1660mm |
| Q | Rear turning radius | 1253mm |
| R | Rear axle to bumper | 910mm |
| S | Track width | 785mm |
| T | Width | 920mm |
| U | Bucket width | 1070mm |
Optional attachment
Standard bucket
Deep bucket
Screening bucket
Quick coupler
Pallet forks
Auger
Snow plow blade
Log grapple
Round bale handler
Square bale handler
Flail mower
Lifting boom / Crane Attachment
Which wheel loader is suitable for compact workspaces and environmentally sensitive areas?
Which wheel loader is suitable for compact workspaces and environmentally sensitive areas?
The electric front-end wheel loader is ideal for confined sites. With a compact body, narrow width, and small turning radius, it uses a pure electric drive system powered by a high-performance lithium battery. It delivers zero emissions and quiet operation, making it suitable for urban projects, factories, and agricultural areas with strict environmental standards.
Which model is recommended for large-scale mining operations requiring higher bucket capacity and wider dumping reach?
Which model is recommended for large-scale mining operations requiring higher bucket capacity and wider dumping reach?
The diesel front-end wheel loader is designed for heavy-duty applications. It features a 3 m³ bucket capacity and a maximum dumping height of 3,300 mm, providing excellent material handling efficiency and adaptability for intensive mining and loading operations.
Which wheel loader is suitable for forestry operations that require strong grip and stable performance when handling logs?
Which wheel loader is suitable for forestry operations that require strong grip and stable performance when handling logs?
The log handling diesel wheel loader is equipped with an extended grapple arm specifically designed for large-diameter timber. It ensures firm gripping and efficient transfer of logs. The combination of a fixed-shaft Beilian gearbox and a Shantui torque converter provides easy maintenance, smooth power transmission, and superior overload resistance.
Can the stone-handling diesel wheel loader operate effectively on rough or uneven terrain?
Can the stone-handling diesel wheel loader operate effectively on rough or uneven terrain?
The block handling diesel wheel loader features four-wheel drive and strong traction, combined with high ground clearance to handle challenging site conditions. Its large counterweight offset angle enhances climbing ability, while a maximum lifting capacity of 16 tons, long wheelbase, and reinforced frame ensure operational stability. The maximum unloading height of 3,450 mm allows efficient loading and dumping on uneven surfaces.









